Project Details
Restro-Bar Bengaluru
Project Type
✤
Commercial
Client
✤
Mr. Shiva Hegde
Year
✤
2021
Size
✤
2000
sq. ft.
Location
✤
Bengaluru
Status
✤
Completed
Project Overview
he project presented a challenge of optimizing space within an existing footprint. Through strategic reconfiguration and the introduction of flexible seating arrangements, we achieved a fluid layout that maximizes both capacity and comfort.
The integration of natural light sources and a curated selection of materials enhances the overall ambiance, creating an inviting atmosphere for patrons to unwind and connect.
Design Approach
Contemporary Design & Timeless Roman Aesthetics
Open Floor Plan: Maximized space and flow with an open floor plan, creating a seamless transition between dining and bar areas. By collaborating with local artisans and businesses, we further supported the community while enriching the space with authentic touches.
Our Approach:
Luxe Material Palette: Incorporated a refined material palette featuring polished concrete floors, exposed brick accents, and warm wood paneling for a touch of luxury.
Statement Lighting: Installed custom-designed pendant lights and integrated LED strips to create a dramatic ambiance and highlight key architectural features.
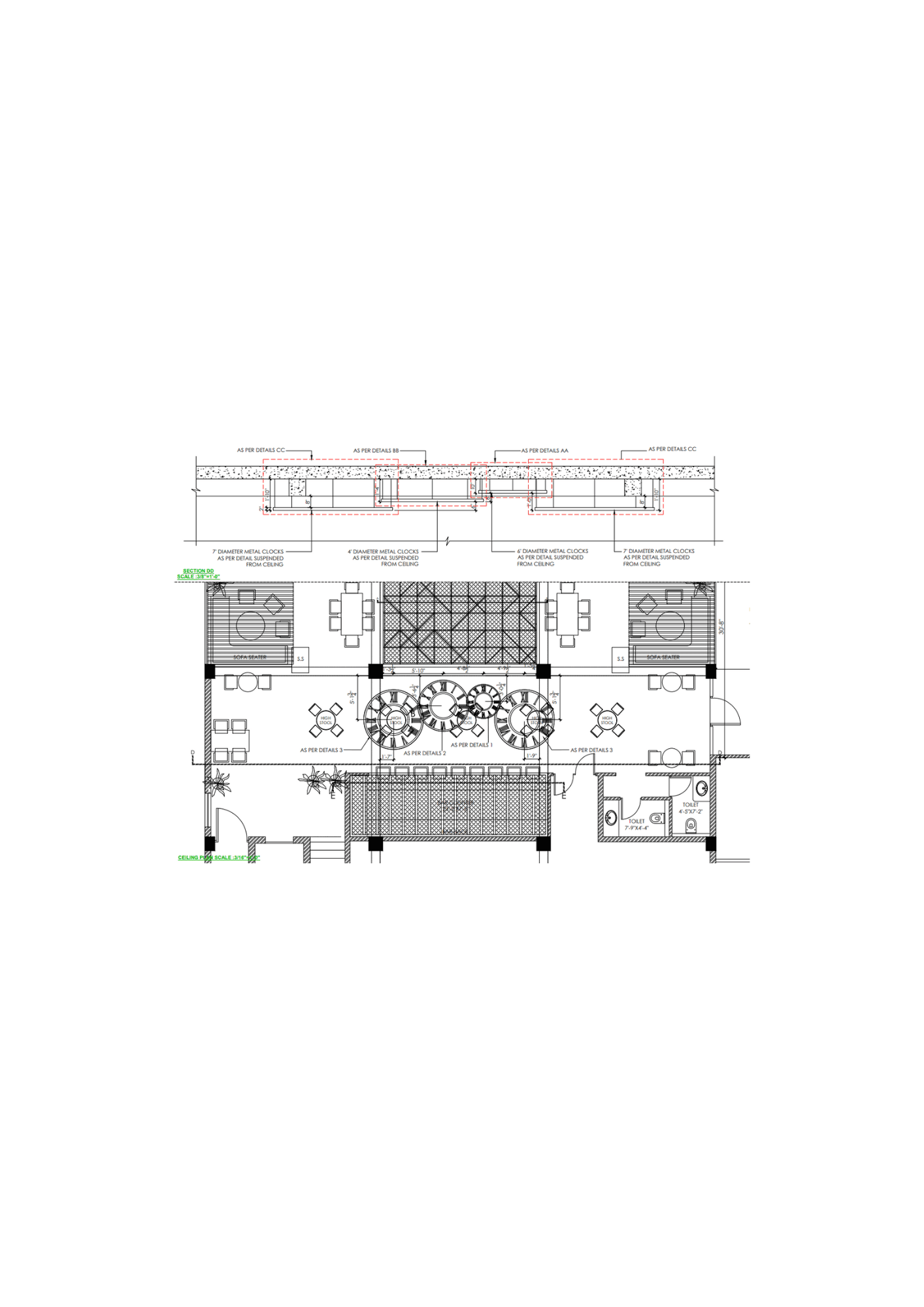
Roman Clock Ceiling Feature: The ceiling is designed as a captivating centerpiece, inspired by Roman clock faces. The entire ceiling is finished in such way, so creating a sense of depth and antiquity.
A Business-Savvy Approach: While the emphasis is on luxury and experience, this project is firmly rooted in practicality. Every seating arrangement, bar setup, and private dining area has been meticulously planned to maximize revenue generation.
Sustainable Practices: Prioritized sustainable practices by utilizing reclaimed materials and energy-efficient lighting and appliances.














